Golden Office Space Available

Immediately Available: Executive office suites within a small, two-level office building located in residential neighborhood at southern end of downtown Golden.

Location:

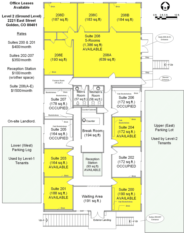
Floorplan / Available Suites:

Advantages:

  • On-site landlord. Jim Reed (owner) works in office (RockWare Geological Software) on lower level.
  • Building is located within a quiet, residential neighborhood.
  • Large parking lots on western and eastern sides of the building easily accommodate visitors.
  • Excellent views to west (Lookout Mountain) and East (Table Mesa).
  • Flexible lease terms (one month to one year).
  • No hidden costs (landlord pays for once-a-week janitorial services, snow removal, and all utilities).
  • Wireless Internet.
  • 24-hour / 7-days-per-week access.
  • Baseboard, gas-fired, hot-water heating and evaporative cooling.

Disadvantages:

  • Not suitable for retail traffic.
  • Restrooms shared with other tenants.

Requirements:

  • Renter’s Insurance ($1m Liability)

Lease Terms:

  • Flexible: Month-to-Month, 6-Month, 1-Year, etc.
  • Payments due monthly.

For more information or to arrange a visit, contact …

Dyan Reed

Cell: 303-829-6026

Email: dyanreed@gmail.com

 

Unknown's avatar

About Jim Reed

Geologist & Director of Research & Development, RockWare Incorporated, 2221 East Street, Suite 101, Golden, CO 80401 Email: jim@rockware.com
This entry was posted in Uncategorized. Bookmark the permalink.

Leave a comment